Spacious Functionality in a Small Footprint: Full Bathroom Floor Plan with Bidet
This full bath layout uses a split 2-wall configuration to maximize comfort and usability in a compact 5.4 m² (58.1 sq ft) area. By separating the vanity from the main wet zone, this design improves circulation and privacy, making it ideal for family homes or shared accommodations.
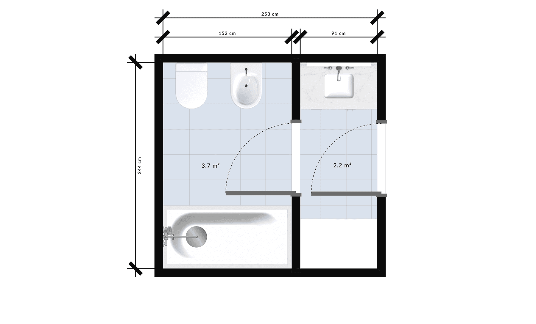
Room-by-Room Breakdown
Discover the architectural intention behind each fixture's placement in this full layout.
Bathtub: Centered along the back wall, this full-size tub is paired with an overhead rain shower, providing both daily convenience and spa-like comfort.
Bidet and Toilet: Aligned along one wall, the wall-hung toilet and adjacent bidet offer modern sanitary features while preserving floor space.
Vanity and Sink: Set in its own alcove, the vanity includes a ceramic countertop sink, a large mirror to reflect light, and a two-door cabinet that organizes essentials without crowding the space.
Minimum Dimensions & Planning Tips
The Split Bidet Facing 2-Wall Full Bathroom layout requires a surface area between 6.2–7.4 m² (67–80 ft²). It typically spans 2.57–2.88 m (8'5"–9'5") in width and 2.44–2.59 m (8'–8'6") in depth. This design organizes the bathtub, toilet, and bidet along opposite walls in the main bathroom, while placing the sink in an adjacent entry space—ensuring a functional separation between grooming and sanitary areas.
To ensure proper use of fixtures, maintain an activity clearance of at least 61 cm (24") around each one. A circulation width of 76 cm (30") allows for comfortable movement, and 1.52 m (60") in diameter provides accessible turning space where needed.
Architectural Design Tips
Let these architectural insights guide you through a successful renovation of a bathroom.
Prioritize alignment: placing the bathtub and bidet on one wall and the toilet on the opposite side enhances balance and improves accessibility.
Use vertical shelving or wall-mounted cabinets in the entry zone to optimize storage without reducing floor space.
To improve usability in small renovations, install pocket doors to avoid door swing conflict between the two rooms.
During a renovation of a bathroom, this layout enables the clear division of functions and can improve daily routines for households with multiple users.
For a remodeling of bathroom, this setup is ideal to create a more elegant and hotel-style feel without expanding the existing footprint.
This thoughtful configuration supports both functionality and comfort, making it a smart choice for those looking to upgrade privacy and efficiency in a full bathroom.
Plan Your Bathroom Online
Explore floor plans for bathrooms like this one with Space Designer 3D—a free bathroom design software that lets you design a bathroom online free. This virtual bathroom designer free tool is ideal for creating a small bathroom layout plan, experimenting with design for small bathrooms, and visualizing your entire plan of home design from any device.







